12 freifinanzierte Eigentumswohnungen

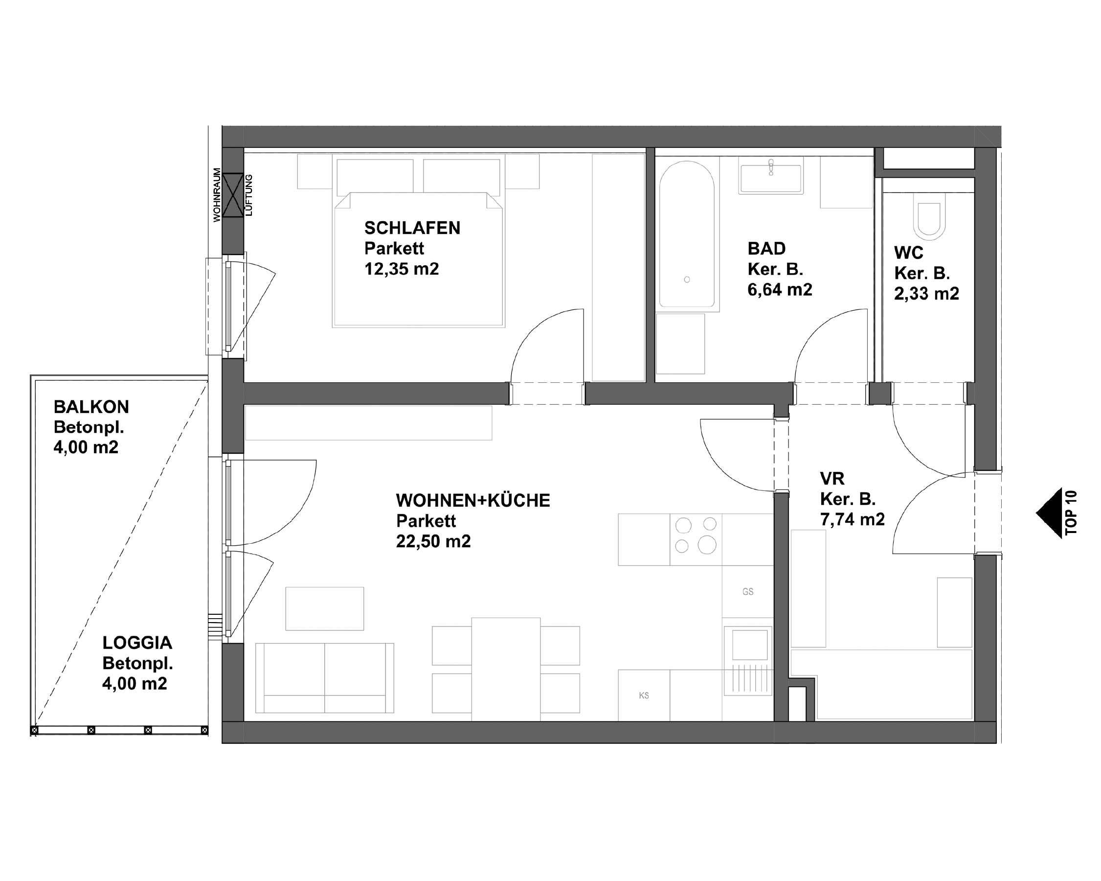
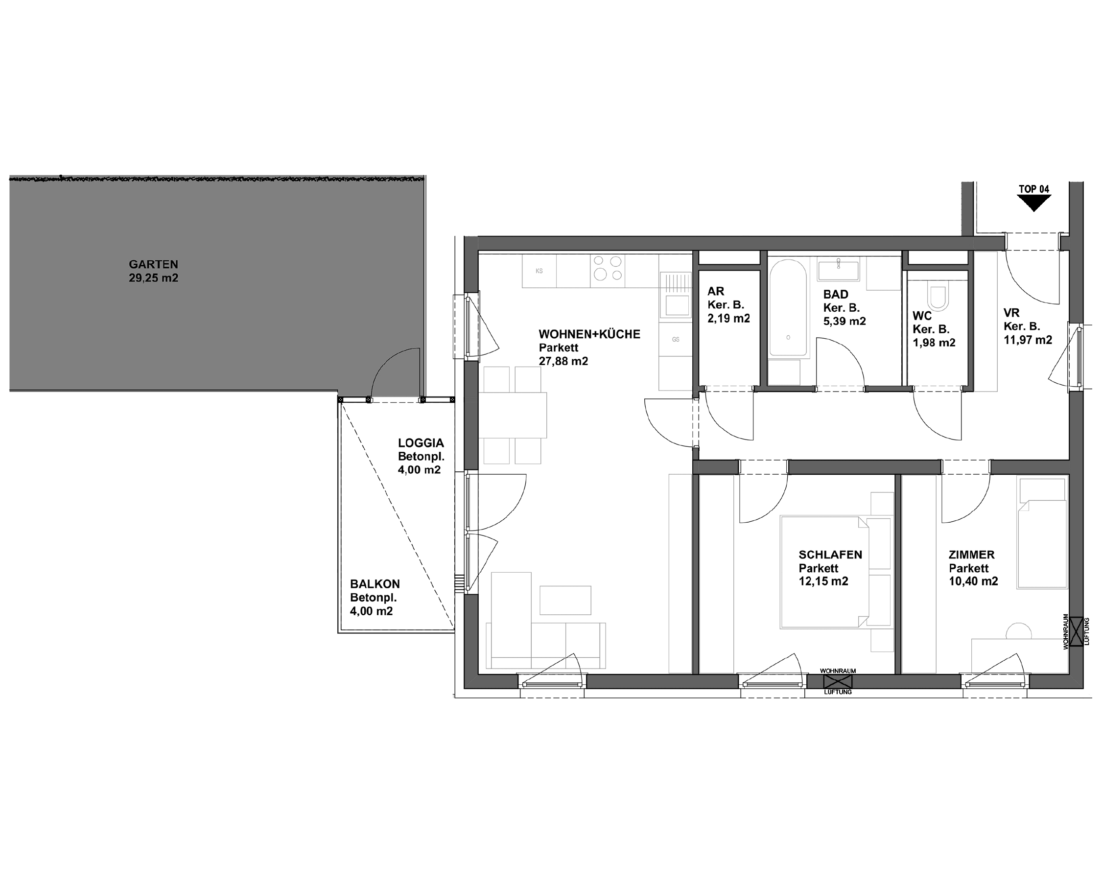
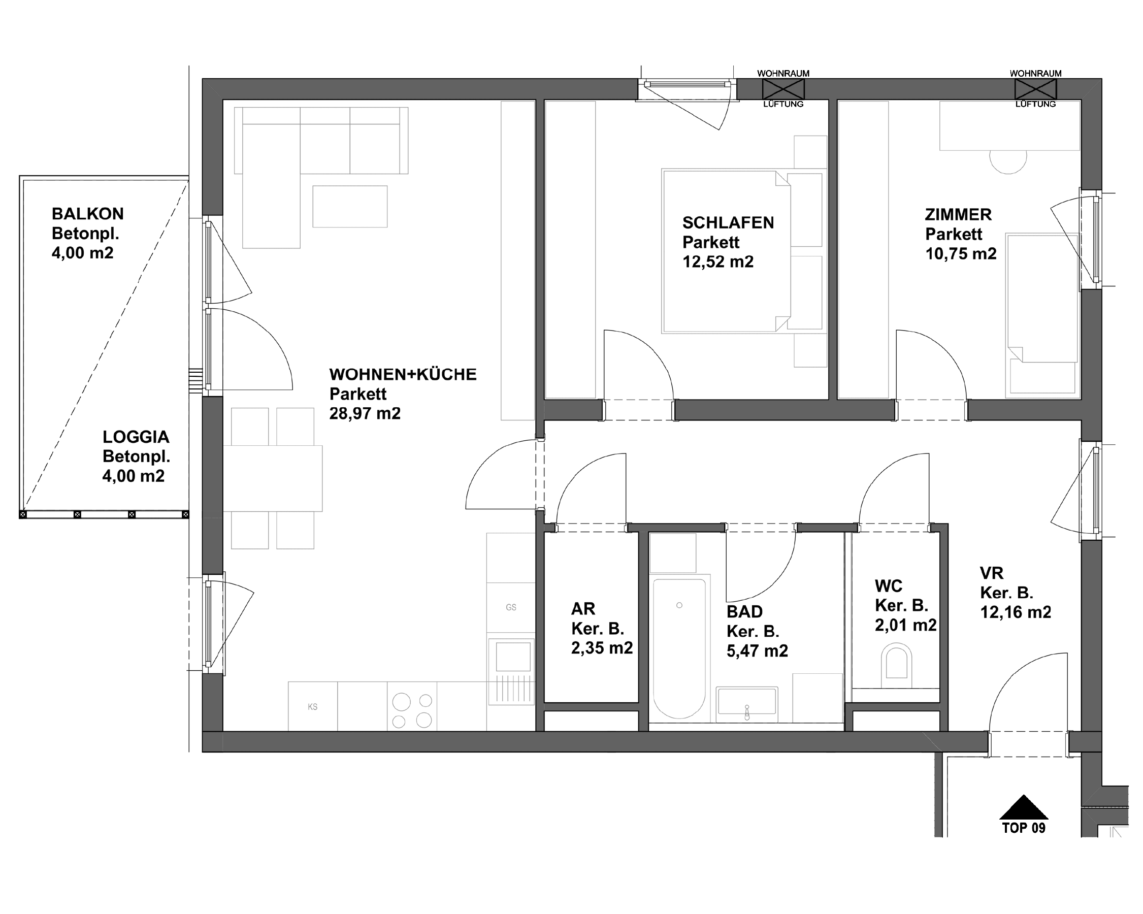
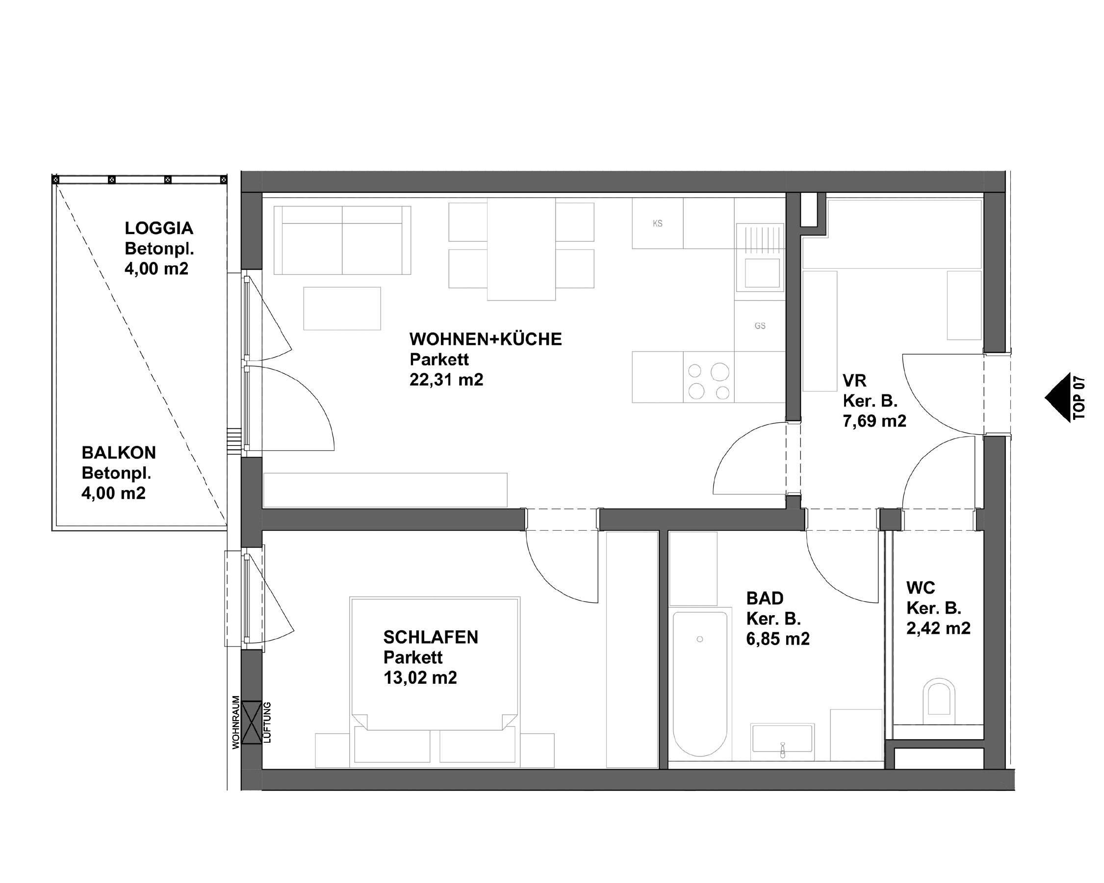
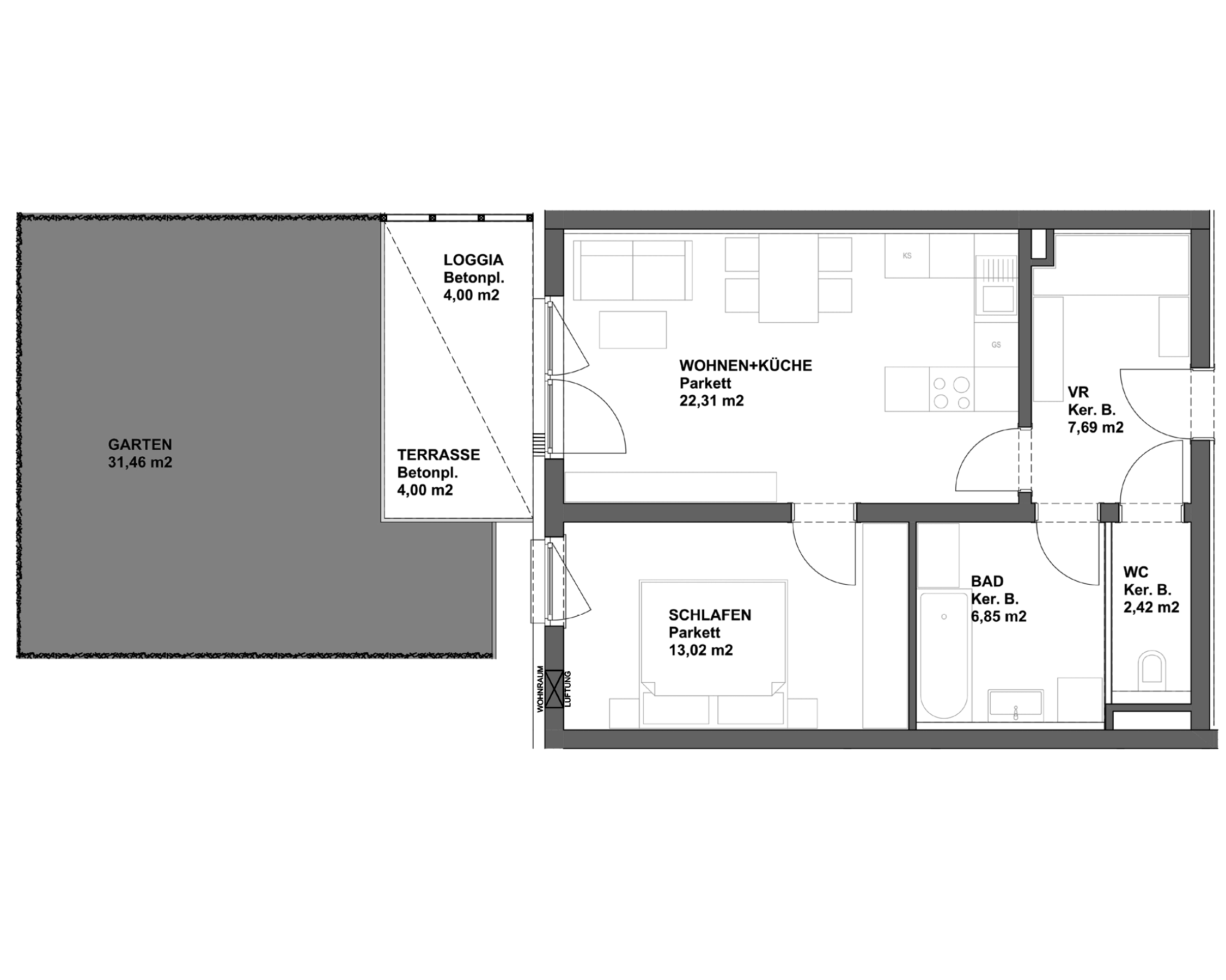
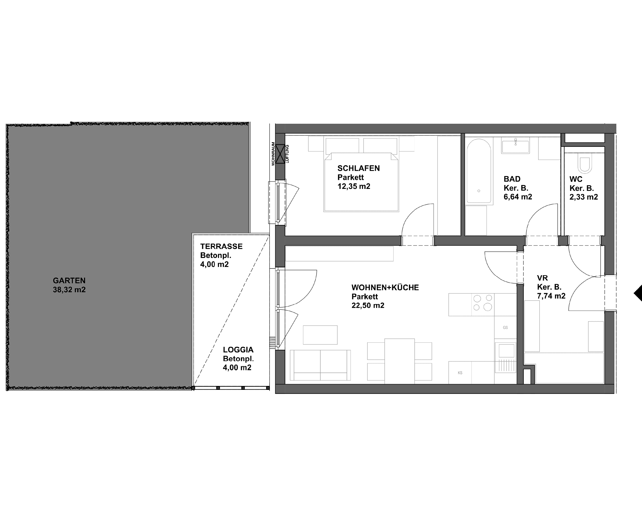
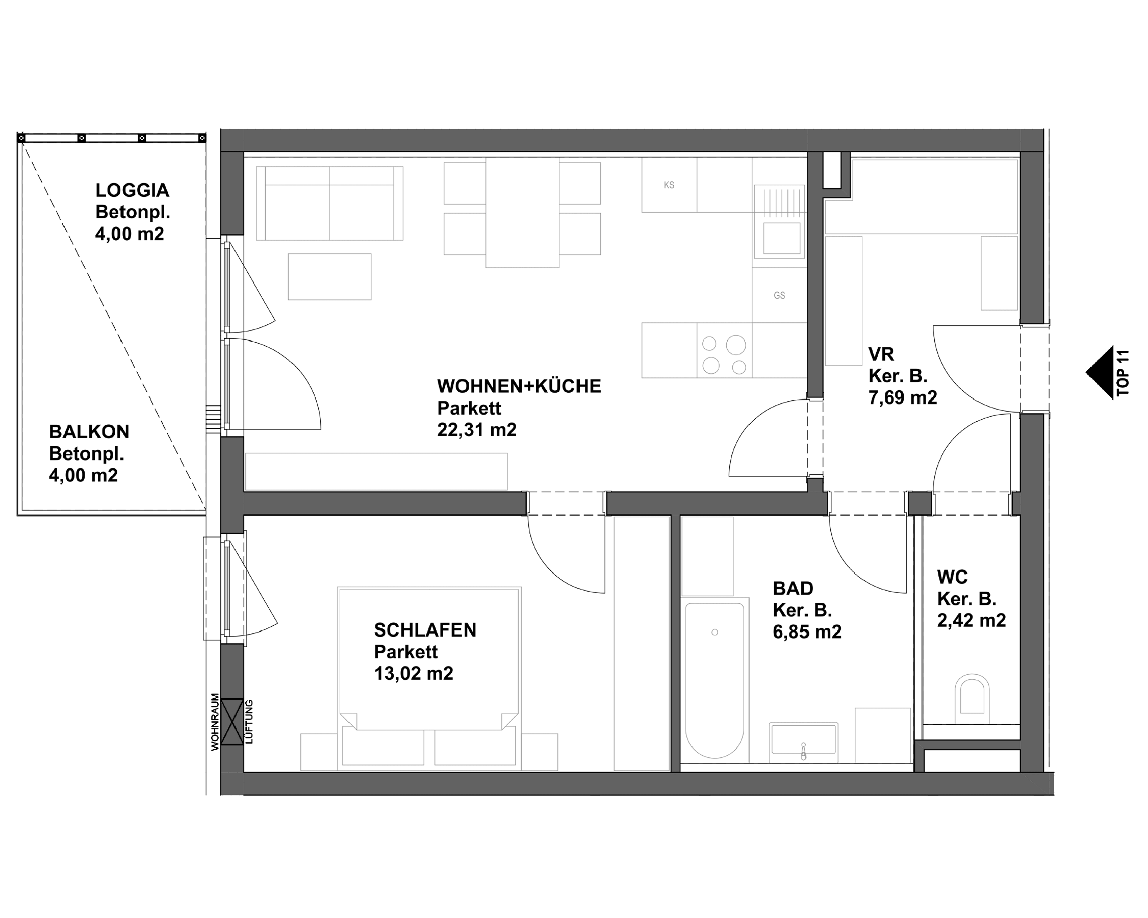
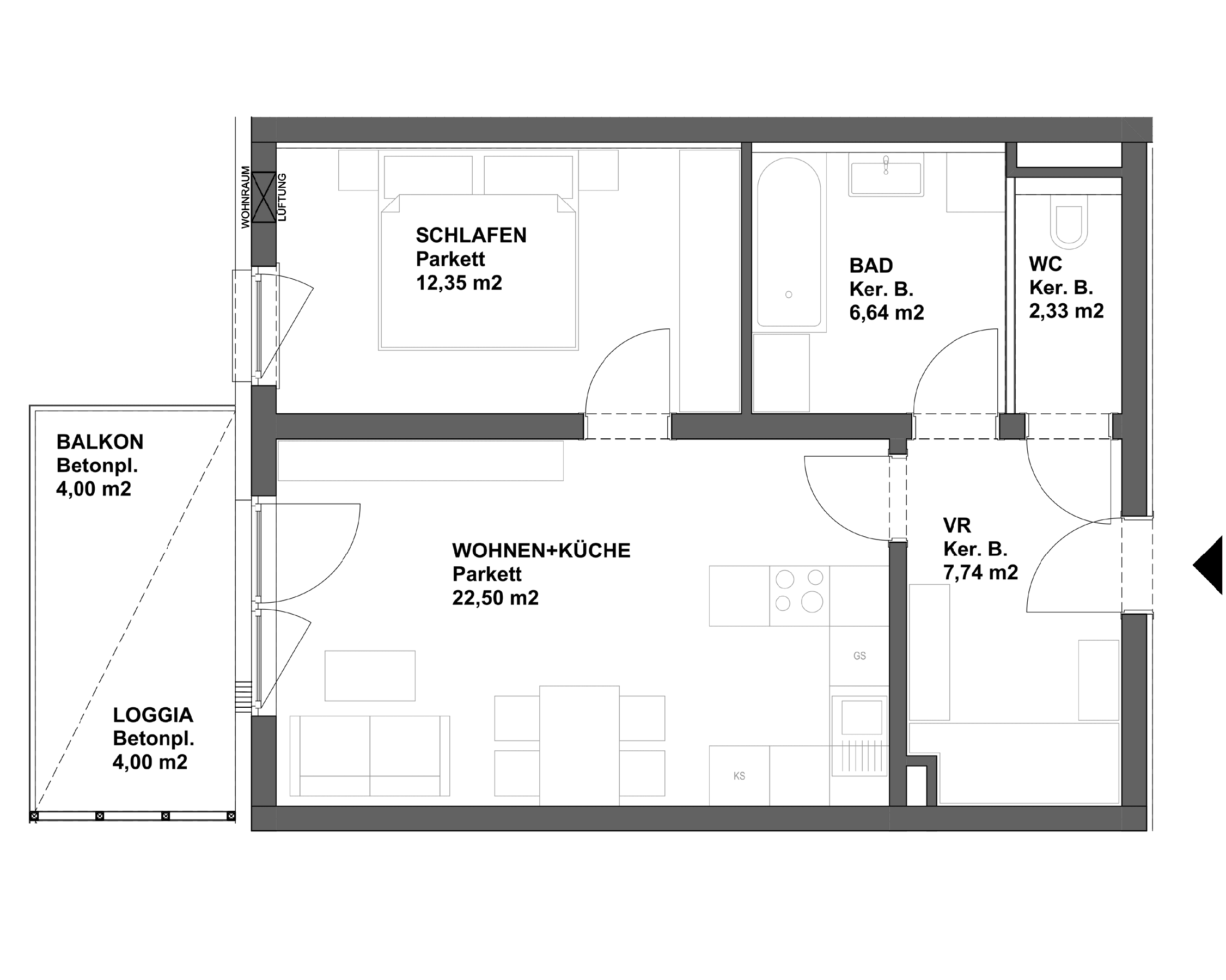
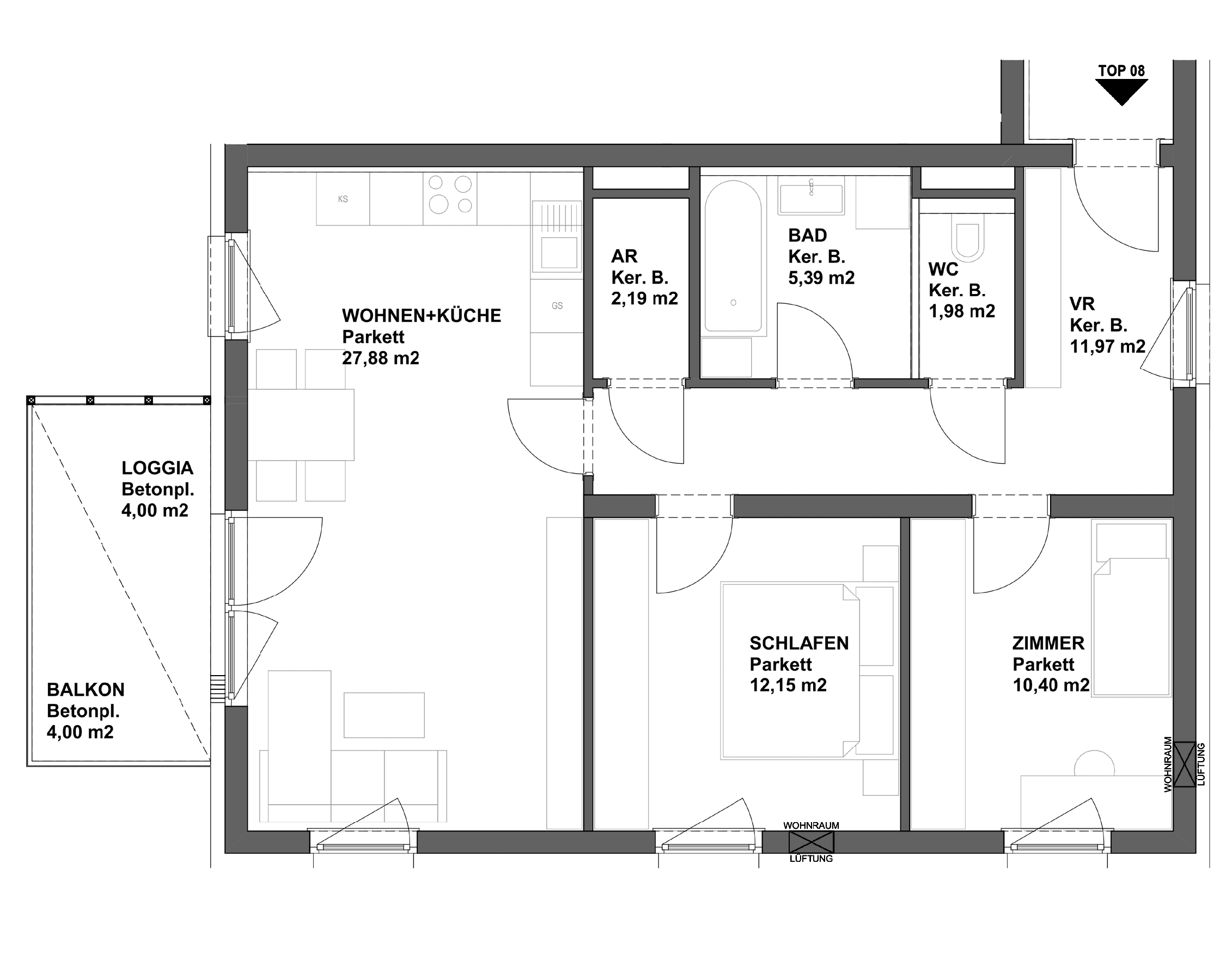
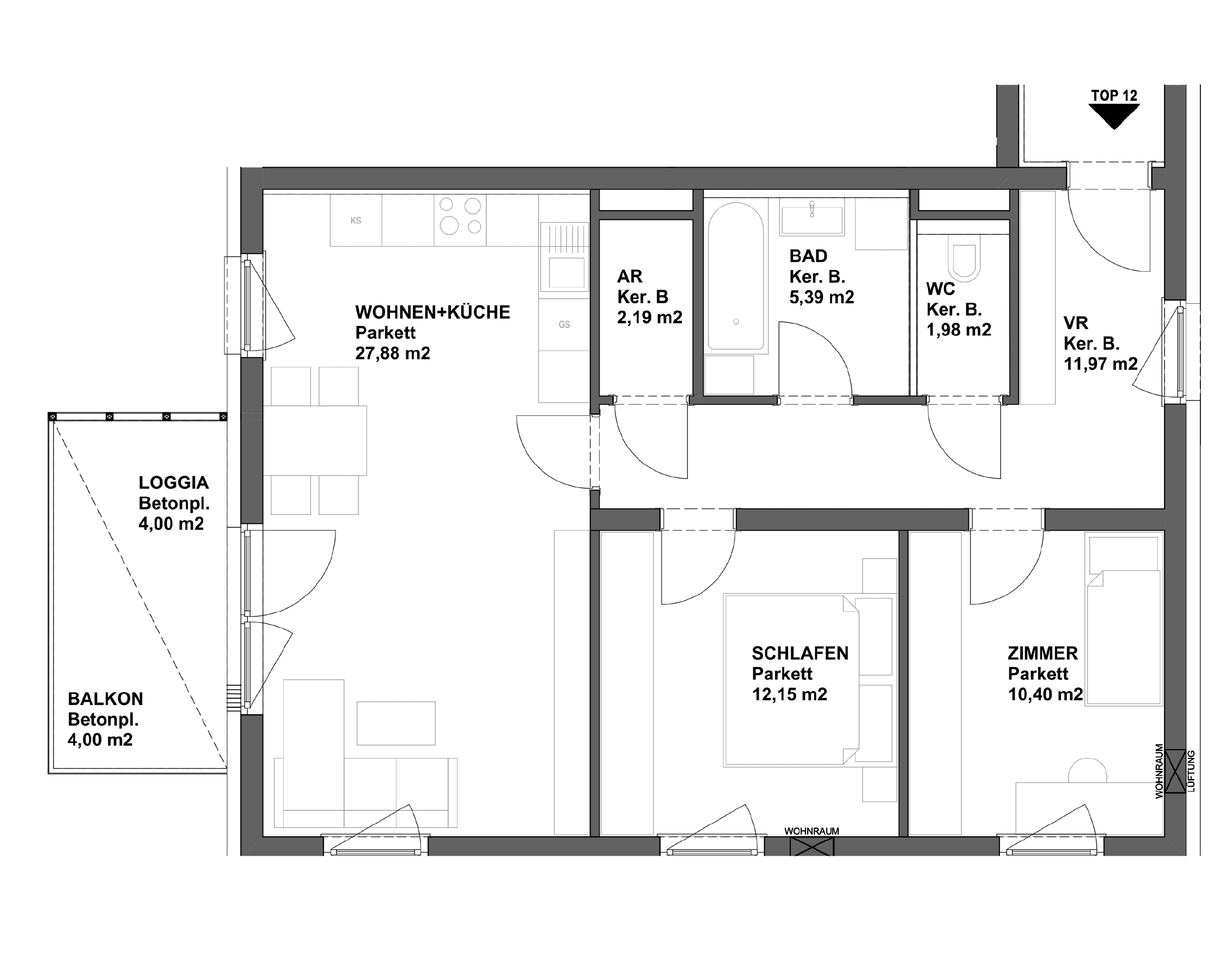
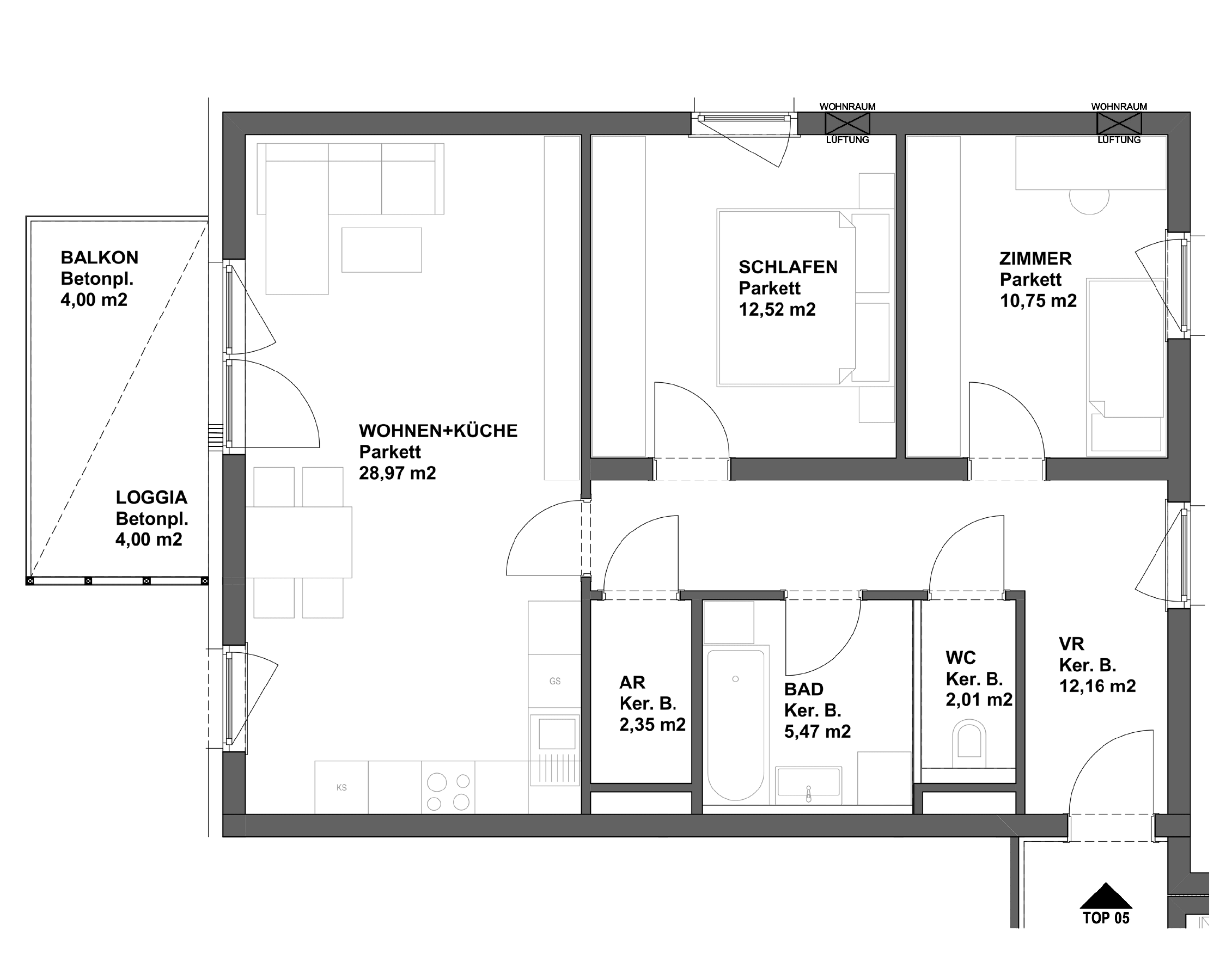
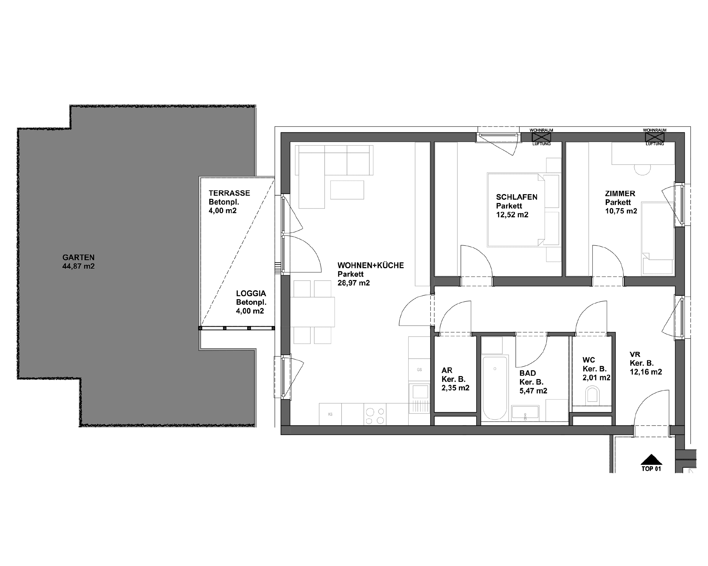
Das Projekt in Kremsmünster bietet moderne 2- bis 3-Raumwohnungen mit Wohnflächen von ca. 52 bis 74 m². Die Wohnungen verfügen je nach Ausführung über Eigengärten, Loggien oder Balkone und entsprechen aktuellen Standards für zeitgemäßes Wohnen.

Durch effizient geplante Grundrisse, großzügige Außenflächen und eine moderne Bauweise bieten die Wohnungen ein funktionales und angenehmes Wohnumfeld in attraktiver Lage.

Energiewerte: HWB 34 / fGEE 0,73

Jetzt Besichtigen! Wir freuen uns auf Ihre Anfrage!

Lagenbeschreibung

Nur wenige Minuten vom Zentrum Kremsmünster entfernt befindet sich Ihr neues Zuhause in attraktiver Lage mit Blick auf das umliegende Bergpanorama. Der Standort bietet eine ruhige Wohnumgebung und gleichzeitig eine gute Erreichbarkeit für den Alltag.

Der Autobahnknoten Sattledt ist in etwa zehn Autominuten erreichbar, zudem besteht eine gute Anbindung an den öffentlichen Nahverkehr. Die Umgebung eignet sich für Spaziergänge und Radtouren in der Natur. Einkaufsmöglichkeiten für den täglichen Bedarf befinden sich in unmittelbarer Nähe.

Projekt Phoenix
Projekt Phoenix

Erwerber muss ein Mitglied der Baureform Wohnstätte sein bzw. werden und den einmaligen Mitgliedsbeitrag bezahlen.
Dieser setzt sich aus 5 Geschäftsanteilen zu je 22 Euro sowie der Beitrittsgebühr in Höhe von 22 Euro zusammen, insgesamt also 132 Euro.

Die angeführten Kaufpreise sind Fixpreise inklusive eines Tiefgaragenparkplatzes. Nicht enthalten sind die üblichen Nebenkosten beim Erwerb von Immobilien.
Grunderwerbssteuer: 3,5%, Grundbucheintragungsgebühr: 1,1%, Vertragserrichtungs- und Treuhandabwicklungskosten: ca. 1,3 zzgl. 20% Ust. zzgl. Barauslagen.
Vermittlungsprovision: Provisionsfrei für den Käufer!

*Neuerung 2024: Die Grundbucheintragungsgebühr entfällt, wenn 1) der Antrag zwischen dem 1. Juli 2024 und dem 1. Juli 2026 eingeht, 2) die Bemessungsgrundlage bei bis zu 500.000 Euro liegt (für den Teil, der über 500.000 Euro hinausgeht, ist die Gebühr von 1,1% zu entrichten; Gebührenbefreiung bis zu einem Höchstwert von 2 Millionen Euro), 3) die Immobilie als Hauptwohnsitz dient und 4) es sich um den ersten Immobilienerwerb handelt (Quelle: Bundesministerium)

Unverbindliches, freibleibendes Angebot. Informationen nach bestem Wissen und Gewissen vom Abgeber erhalten - für die Richtigkeit wird keine Haftung übernommen.
Mündliche Nebenabreden zum angebotenen Objekt bedürfen zu Ihrer Wirksamkeit der Schriftform. Irrtümer, Druckfehler und Änderungen vorbehalten.
Es besteht zwischen dem Vermittler und dem Abgeber ein wirtschaftliches Naheverhältnis.

Nehmen Sie Kontakt mit uns auf.

Sie haben Interesse an einer Wohnung und möchten mehr Details? Nach Ausfüllen des Kontaktformulars werden wir uns so bald wie möglich bei Ihnen melden.